ОБЯВЛЕНИЕ № ТСУ-30-1806-1/20.09.2024г. гр. Плевен
575
ОБЯВЛЕНИЕ
№ ТСУ-30-1806-1/20.09.2024г.
гр. Плевен
Община Плевен, на основание чл. 129, ал.2 от Закона за устройство на територията съобщава, че със заповед № РД-12-435/20.09.2024г. е одобрен
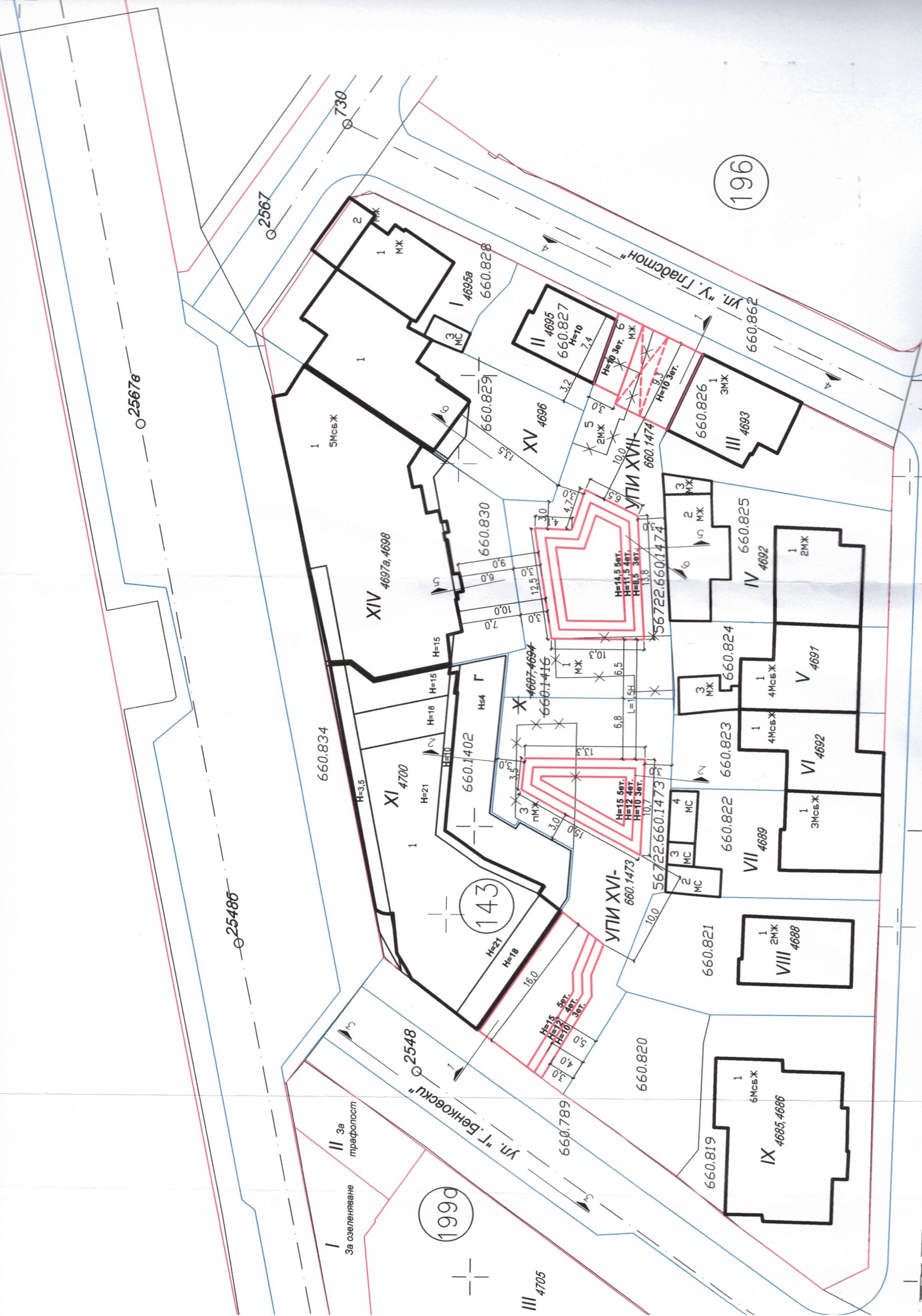
Изменение на действащия Подробен Устройствен План - План за Регулация и Застрояване и Работен Устройствен План за УПИ Х-4687,4694 в кв. 143 по плана на гр. Плевен
който е изложен в Общината, стая № 85 и може да бъде прегледан в дните понеделник, вторник, сряда, четвъртък и петък от 9.00 до 11.00 часа, както и на сайта на Община Плевен.
На основание чл. 215, ал.4 във връзка с чл.213 и чл. 214 от Закона за устройство на територията заповедта може да се обжалва в 14 (четиринадесет) дневен срок от съобщаването й пред Административен съд чрез Община-Плевен.
Жалбата се подава в два екземпляра в общинската администрация – информационен център за обслужване на гражданите в Общината.
При обжалване за образуване на съдебно производство следва да бъде внесена държавна такса на основание чл. 2б от Тарифа №1 към Закона за държавните такси от жалбоподателите, както следва:
-физически лица, които не са търговци и юридически лица с нестопанска цел- 10лв.
-други юридически лица и физически лица- търговци по смисъла на
търговския закон –50лв.
Таксата се внася по сметка на Административен съд.
арх. Явор Йорданов:
Директор Дирекция „УТ”
                        